Case Semi-indipendenti in vendita 142 m², Pescara, località Colli

Abruzzo Pescara Colli Rif. CHGE300925
+

VENDESI BIFAMILIARE PESCARA COLLI MADONNA SETTE DOLORI

Prezzo
€ 280.000
Contratto
Vendita
Tipologia
Case Semi-indipendenti
Destinazione
Residenziale
Regione
Abruzzo
Provincia
Pescara
Comune
Pescara
Località
Colli
Superficie
142 m²
Locali
4
Camere
3
Bagni
2

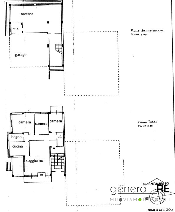
L'agenzia Genera-re e Chiodelli immobiliare propongono in vendita a Pescara colli, Madonna dei Sette Dolori, in villa bifamiliare, appartamento di circa 142 mq disposto su due piani.
Al piano rialzato l'immobile č composto da ingresso, un luminoso soggiorno, cucina abitabile, tre camere, due bagni e balconi con accesso diretto al giardino privato.
Al Piano seminterrato, collegato da scala interna, ampia taverna, cucina e bagno, ideale per convivialitā e momenti di relax.
Completano la proprietā un garage di circa 50 mq da condividere con l'appartamento del Primo piano.

Classe Energetica:

Caratteristiche

Condizioni:
Parcheggio: Garage
Giardino m2: Privato
Piano: Rialzato - piani edificio: 4
Cucina: Abitabile

Foto

VENDESI BIFAMILIARE PESCARA COLLI MADONNA SETTE DOLORI - 1
VENDESI BIFAMILIARE PESCARA COLLI MADONNA SETTE DOLORI - 2
VENDESI BIFAMILIARE PESCARA COLLI MADONNA SETTE DOLORI - 3
VENDESI BIFAMILIARE PESCARA COLLI MADONNA SETTE DOLORI - 4
VENDESI BIFAMILIARE PESCARA COLLI MADONNA SETTE DOLORI - 5
VENDESI BIFAMILIARE PESCARA COLLI MADONNA SETTE DOLORI - 6
VENDESI BIFAMILIARE PESCARA COLLI MADONNA SETTE DOLORI - 7
VENDESI BIFAMILIARE PESCARA COLLI MADONNA SETTE DOLORI - 8
VENDESI BIFAMILIARE PESCARA COLLI MADONNA SETTE DOLORI - 9
VENDESI BIFAMILIARE PESCARA COLLI MADONNA SETTE DOLORI - 10
VENDESI BIFAMILIARE PESCARA COLLI MADONNA SETTE DOLORI - 11

Planimetrie

VENDESI BIFAMILIARE PESCARA COLLI MADONNA SETTE DOLORI - 1

Mappa

Immobili Correlati

Vendita
€/m² 1.905
+  

Case Semi-indipendenti in vendita 147 m², Pescara, località Colli

Abruzzo - Pescara - Pescara - Colli - Rif. CHGE11025
€ 280.000
Vedi Foto e Dettagli